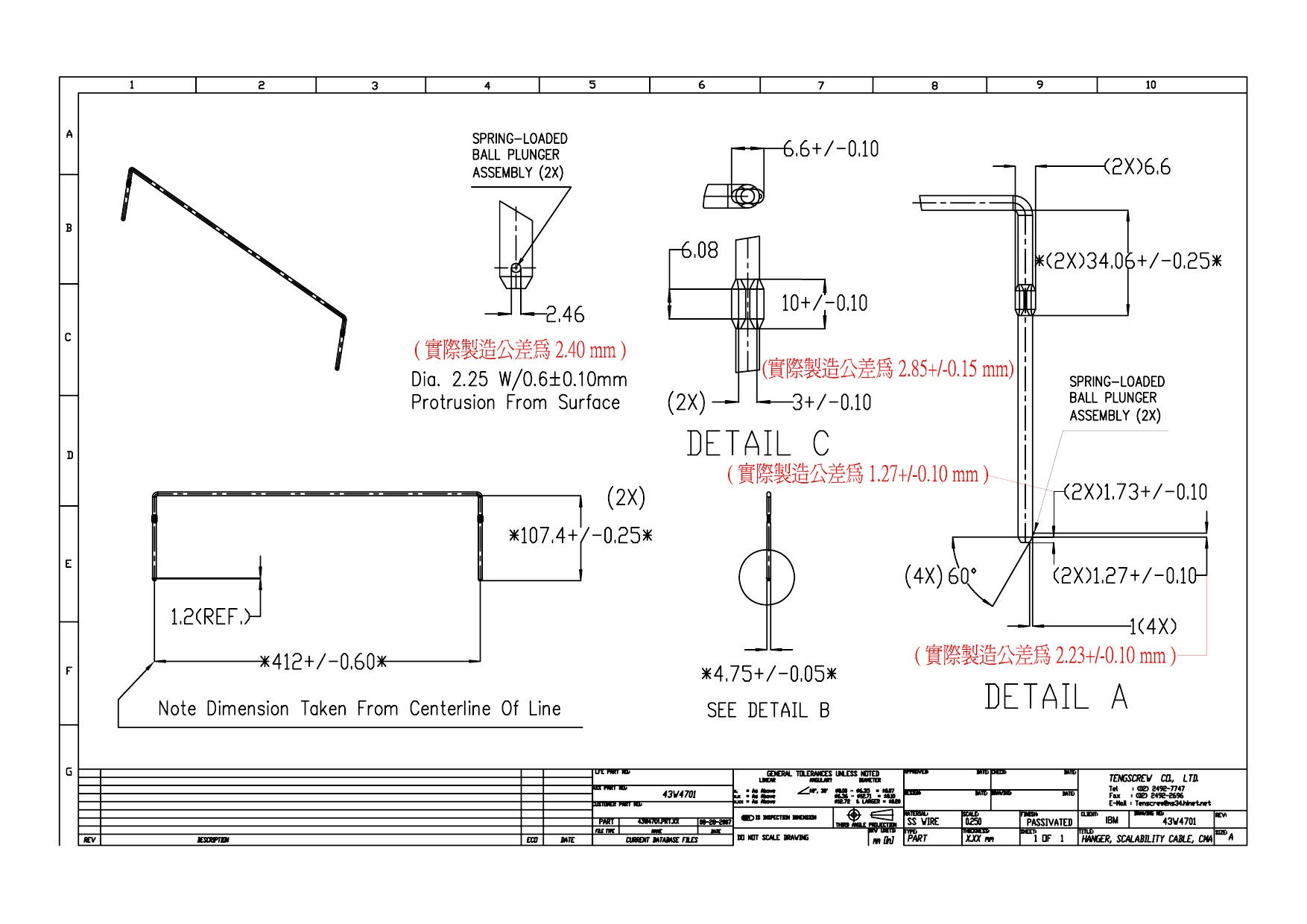
Prompt Ball Spring Loaded Plunger-Big Application
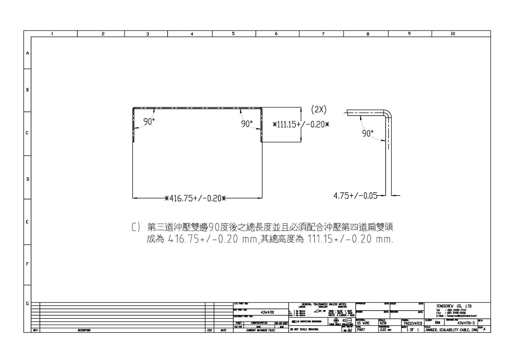
As 10 Making &  Inspection Procedures